The first phase
A community
for people to live, work and play.
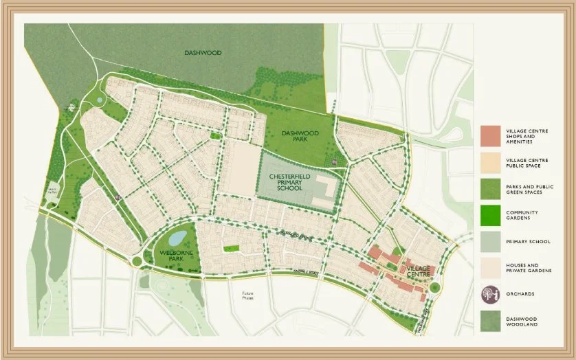
What Will Be Delivered In The First Phase?
Up to 700 homes
Village centre
parks, footpaths and cycle ways
m27 junction 10 upgrade
Woodland access
fareham bus service
First primary school
Work to prepare the Phase One area for the first homes at Welborne started in 2024 and our first homes will be ready in the Spring of this year. Green infrastructure and engineering works are now in place. We are proud to be working with as many Hampshire based firms as possible with our ‘Local First’ initiative. Approximately 68% of our suppliers, contractors and consultants working on Welborne are from Hampshire.
We have selected three regional housebuilders, CG Fry & Son, Thakeham and Pye Homes and have created Joint Venture companies to work in partnership with each – a very different model of delivery to the industry standard. Building the first homes have already started and are aligned to our exacting design standards and codes overseen by our Town Architect, Ben Pentreath. Detailed planning applications for the first homes have been approved by Fareham Borough Council. We look forward to welcoming our first residents in 2025.
Early provision of facilities and a local hub will be vital in creating a sense of place. We have submitted the application for the Village Centre with its community hall, cafes, shops pub and houses this year with a view to start construction next year. We are also working with Hampshire County Council on the delivery of the first primary school.
Our house and street designs reflect the Hampshire traditional style but with the supporting technology and connectivity to ensure Welborne thrives into the future. All the homes will be heated and cooled by a low carbon water source heat network, ensuring ‘climate-change’ resilience is built in.

